Без комісії Новый современный дом 256м коттеджный городок Козин. Київська обл

Новый современный дом 256м коттеджный городок Козин

$ 370 000 $ 1 445 за м2
  • Адреса: Київська обл, Старообухівська траса, Козин, Конча-Заспа, Обуховский р-н
  • Площа: 256.00 м2
  • Розмір ділянки: 0.12 га
  • ID: 4-00666

Опис

  • Розмір ділянки (га): 0.12 га
  • Cтатус: в собственности
  • Цільове призначення: строительство и обслуживание жилого дома
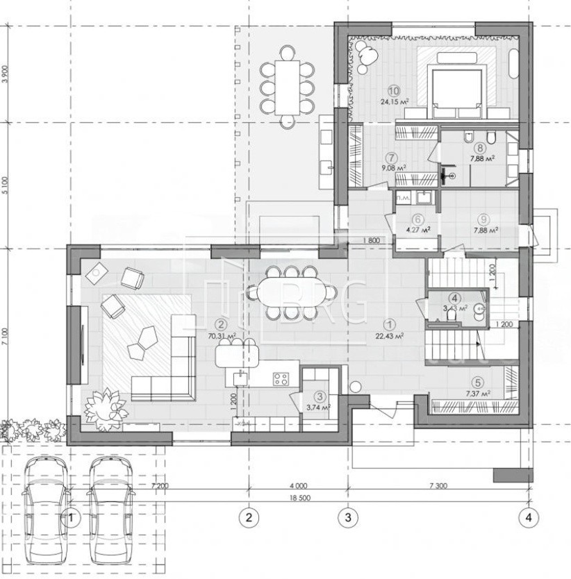
  • Площа будинку (м2): 256.00 м2
  • Поверховість: 2
  • Кількість спалень: 4
  • 1й поверх: гостиная с зоной столовой и кухни, мастер спальня с гардеробом и с/у, спальня, гардеробная, кладовая, постирочная, котельная, гостевой с/у
  • 2й поверх: 2 спальни со своим с/у, 2 гардеробные
  • Стан будинку: без отделки
  • Статус будинку: введен в эксплуатацию
  • Вода: скважина
  • Каналізація: септик
  • Електроенергія: 40 кВт
  • Безпека: охрана КГ
  • Тип місцевості: зона коттеджной застройки, коттеджный городок
  • Транспортна доступність: удобная транспортная доступность по Старообуховской трассе

Креслення та схеми

Зв'язатися з нами

Ми допоможемо підібрати те, що вам підійде найкраще. Залиште ваші дані
і наш спеціаліст передзвонить та проконсультує з будь-якого питання
Галина Ген директор / Топ менеджер +380(67)403-80-62

Схожі об'єкти

Дом 400м в Рудыках

Козин, Конча-Заспа, Обуховский р-н

Площа: 400 м2 Ціна: 550 000 ID: 4-00303
Знято з продажу Дом 400м в Рудыках . Київська обл